Façade Shop Drawings: Turning Architectural Visions into Reality
Façade shop drawings are detailed technical drawings that show how the exterior parts of a building will be made and installed.
The façade of a building is more than just an exterior envelope—it’s a statement of design intent, structural integrity, and environmental performance. From curtain walls to cladding systems, every element of a building’s exterior must seamlessly blend aesthetics with function. Façade shop drawings play a pivotal role in achieving this balance.
These highly detailed, technical illustrations serve as the bridge between architectural concepts and real-world execution, translating visionary designs into buildable components.
By aligning the architect’s vision with engineering precision and fabrication requirements, façade shop drawings ensure clarity, accuracy, and constructability at every stage of the project.
In this article, we’ll explore how these drawings transform design blueprints into tangible façades that define skylines and shape the urban experience.
What Are Façade Shop Drawings?
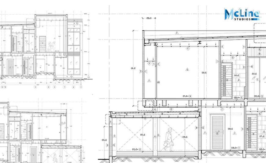
Façade shop drawings are detailed technical drawings that show how the exterior parts of a building will be made and installed. These drawings are created by fabricators or contractors after the architect finishes the design. They help turn creative ideas into real structures by showing exact sizes, materials, connections, and installation steps.
A façade is the outer face of a building—what people see from the outside. It includes walls, windows, cladding, and other design features. To build it properly, every small detail must be planned. That’s where shop drawings come in. They give builders, manufacturers, and installers the clear instructions they need to do their job correctly.
Façade shop drawings usually include:
-
Exact measurements and materials
-
Joint and connection details
-
How each part fits together
-
Instructions for installation
-
Compliance with design and building codes
These drawings help avoid mistakes on-site. They also make sure everyone on the project—architects, engineers, contractors, and suppliers—is on the same page. Any issues in the design can be found and fixed early, which saves time and money during construction.
In simple terms, façade shop drawings act like a recipe for building the outside of a building. They help make sure the design looks right, works well, and can be built safely. Without them, the process of turning an architectural vision into reality would be much harder and riskier.
The Importance of Façade Shop Drawings in Construction
Façade shop drawings are a very important part of the construction process. They help turn the architect’s design for a building’s exterior into something that can be built safely and correctly. These drawings show every small detail about how the outer parts of the building—like glass panels, metal cladding, or curtain walls—should be made and installed.
In construction, even small mistakes can lead to big problems. Façade shop drawings help prevent those mistakes. They give clear and accurate information to everyone working on the project. This includes measurements, materials, joining methods, and how different parts fit together. With this information, fabricators and installers can do their jobs properly.
Another big reason façade shop drawings are important is that they help teams find and fix design issues early. If something in the architect’s plan won’t work in real life, it can be adjusted before construction starts. This saves time, money, and effort on-site.
These drawings also help make sure the building meets safety codes and quality standards. Without them, there could be delays, wrong installations, or even safety risks.
In short, façade shop drawings are like a step-by-step guide for building the outer shell of a building. They keep everyone on the same page and make sure the final result matches the original design. For a smooth, safe, and successful construction project, these drawings are a must.
The Workflow: From Concept to Construction
Building a façade starts with an idea and ends with real construction. This process involves many steps, and façade shop drawings play a key role in making sure everything goes smoothly. Let’s look at the simple workflow from concept to construction.
-
Concept Design
The architect first creates the design idea for the building’s exterior. This includes the overall look, materials, colors, and shapes. It is more about how the building should look and feel.
-
Design Development
Next, the design becomes more detailed. Architects and engineers work together to make sure the design is safe, strong, and follows all rules. They choose materials and test how the façade will perform in different weather conditions.
-
Façade Shop Drawings
Now, the shop drawings are created by specialists or contractors. These drawings show every small detail—exact sizes, material types, and how different parts will connect. This step turns the design into something that can actually be built.
-
Review and Approval
The architect and engineers review the shop drawings to make sure everything matches the design and is safe to build. If needed, changes are made.
-
Fabrication and Installation
Once approved, the materials are made in factories. Then, they are sent to the construction site and installed as per the drawings.
This workflow helps everyone understand their role and keeps the project on track. Façade shop drawings are the link that connects the design dream to the finished building.
Common Elements Detailed in Façade Shop Drawings
Façade shop drawings are detailed plans that show how the outside parts of a building will be built. These drawings include many important elements to help builders, engineers, and fabricators understand what to do. Let’s look at some of the common elements shown in these drawings.
-
Dimensions and Measurements
Shop drawings show exact sizes of all façade parts—like panels, windows, or frames. This helps make sure everything fits perfectly during installation.
-
Materials and Finishes
They list the types of materials to be used, such as glass, aluminum, or stone. The drawings also show the surface finish—smooth, textured, painted, or polished.
-
Connection Details
Drawings show how different parts of the façade are connected. This includes screws, brackets, joints, or adhesives. Clear connection details help avoid mistakes and keep the structure safe and strong.
-
Section Views and Elevations
Section views show a cut-through look of the façade, while elevation views show the front, side, or back of the building. These views help everyone understand how parts fit together.
-
Fixing and Support Systems
They show how façade elements will be held in place. This includes anchor points, support frames, and fixing systems used during installation.
-
Glass and Window Details
If glass or windows are part of the façade, the drawings include details like glass type, thickness, spacing, and frame design.
These common elements in façade shop drawings help turn complex designs into real, buildable parts with clarity and accuracy.
The End Note
Façade shop drawings are a vital part of the journey from architectural vision to a fully constructed building exterior. They bring clarity, precision, and coordination to every stage of the project—from the early design concept to final installation. By translating creative ideas into detailed, buildable instructions, these drawings ensure that the façade not only looks good but is also safe, strong, and functional.
With clear measurements, material details, connection methods, and installation guidance, façade shop drawings help avoid costly mistakes, reduce delays, and improve overall quality. They also support better communication among architects, engineers, fabricators, and builders, keeping everyone aligned throughout the project.
In short, façade shop drawings are the backbone of successful façade construction. They turn complex designs into reality, making sure the building’s outer face performs well, lasts long, and reflects the architect’s original vision. For any modern construction project, these drawings are not just helpful—they are essential.


